У відповідь на опубліковане звернення депутата Ярослава Бориса на особистій сторінці в соціальній мережі Фейсбук, подаємо громаді міста, а також усім зацікавленим та майбутньому депутатському корпусу інформаційну довідку стосовно приміщення комунальної власності, що розташоване за адресою: м.Городок, вул. Шевченка, 4, яке перебувало в оренді у МГО «Національна асоціація боді–білдінгу аматорів та фітнесу Городоцького району».
Між Городоцькою міською радою та Молодіжною громадською організацією «Національна асоціація боді–білдінгу аматорів та фітнесу Городоцького району» первинний договір оренди укладено 30 листопада 2004 року на загальну площу 95, 3 кв. м.
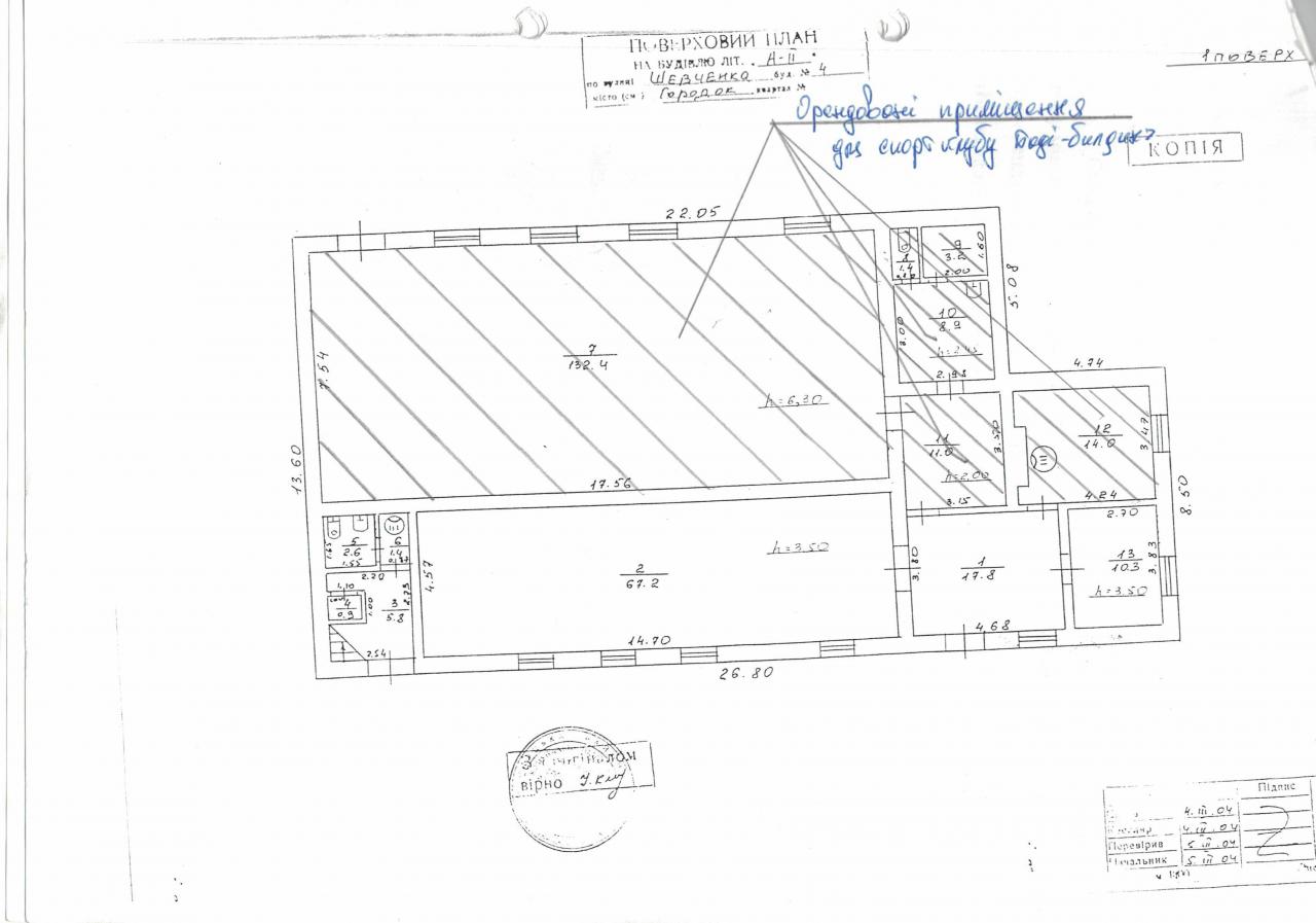
У 2006 році, після звернення орендаря, рішенням виконавчого комітету площа орендованого приміщення збільшилась до 170,9 кв.м. (фото поверхового плану станом на 2006 р. додається), про що укладено договір оренди, проведено оцінку вартості майна та перерахунок ринкової вартості нежитлової будівлі за адресою: м. Городок, вул. Шевченка, 4.
У 2010 році, після звернення орендаря, рішенням виконкому продовжено договір оренди на 2 роки, в подальшому договір оренди приміщення що розташоване за адресою: м. Городок, вул. Шевченка, 4, пролонгувався додатковими угодами до 2018 року.
У період 2017-2018 років було проведено інвентаризацію нежитлових приміщень Городоцької міської ради, під час якої проведено нові обміри, виготовлено нові технічні паспорти, проведено оцінку вартості майна та перерахунок ринкової вартості нежитлової будівлі, іншими словами, здійснено актуалізацію стану нежитлових приміщень, що є у комунальній власності Городоцької міської ради.
При проведенні обстеження приміщення комунальної власності, що розташоване за адресою: м. Городок, вул. Шевченка, 4 було встановлено, що орендар самовільно використовував 84 кв. м. площі нежитлового приміщення (фото станом на 2018 рік додається), а окрім того, без будь яких дозвільних документів, переобладнав площу нежитлового приміщення, де облаштував сауну та інші допоміжні приміщення).
Проте, договором оренди, що діяв із громадською організацією «Національна асоціація боді–білдінгу аматорів та фітнесу Городоцького району» площа орендованого приміщення, за яке сплачувалася орендна плата складала 170, 9 м. кв (орендна плата становила 1748 грн. 11 коп), а фактично використовувалося приміщення площею 254, 9 м кв.
Виходячи із виявленого факту, виконавчий комітет Городоцької міської ради 18.10.2018 року прийняв рішення про збільшення площі (до фактичного користування) та відповідно - збільшення орендної плати до 4888 грн 33 коп , про що укладено додаткову угоду 26.10.2018 року.
10 квітня 2020 року Городоцькою міською радою прийнято рішення №2716 « Про заходи підтримки суб’єктів підприємницької діяльності на період карантину». На виконання вказаного рішення, між Городоцькою міською радою та МГО «Національна асоціація боді–білдінгу аматорів та фітнесу Городоцького району укладено додаткову угоду про припинення нарахування орендної плати. Тобто, на період дії карантину, з 12.03.2020 року і по даний час не нараховується орендна плата вказаному орендарю і останнім не сплачується.
Ні закон, ні Договір, укладений між Городоцькою міською радою та МГО «Національна асоціація боді–білдінгу аматорів та фітнесу Городоцького району не передбачає обов’язку Городоцькою міською радою попереджувати Орендаря про необхідність продовжувати (припиняти) дію Договору.
01.10.2020 року термін дії Договору закінчився, Орендар не вживав жодних дій, які б свідчили про бажання продовжити Договір оренди (не звернувся за 3 місяці до закінчення Договору, як того вимагає законна процедура), а тому міською радою було скеровано листа, яким повідомлено Орендаря про припинення дії Договору, у зв’язку із закінченням терміну, на який він укладався.
